8 (800) 550 11 63
Хотите изменить планировку?
Назначьте встречу с одним из наших архитекторов и на основании ваших идей он создаст индивидуальные планировки .
Получить консультацию

Что входит в стоимость

tick
Утепление кровли 200 мм
tick
Металлочерепица
tick
Балки перекрытия сухие строганные или клееные
tick
Стропильная система сухая строганная
tick
Клееная окосячка оконных и дверных проемов с четвертью.
tick
Фундамент из жб свай или плита по желанию заказчика (за дополнительную плату)

О проекте

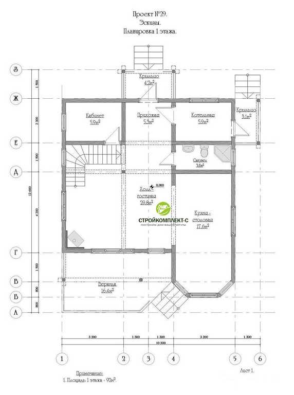
Дома из профилированного бруса совмещают в себе особое жизненное обаяние, уникальность, экологическую чистоту, привлекательный внешний облик, богатство архитектурных идей и ряд других достоинств. Такие постройки прослужат много десятилетий своим владельцам, радуя надежностью и красотой. В них всегда присутствует благоприятный для здоровья человека микроклимат, а их пожарная безопасность обеспечивается благодаря обработке древесины специальными безвредными пропитками. Дом 10х12 по проекту из профилированного бруса ПБ 29 обращает на себя внимание монументальностью и удобством. Эта постройка отличается шикарной планировкой помещений, продуманным экстерьером и стильным видом. В доме имеется два входа. На первом этаже размещены помещения дневного пребывания: кухня-столовая с эркером, рабочий кабинет, большой холл-гостиная и санузел. В котельную предусмотрен отдельный вход с крыльца. К постройке также примыкает просторная веранда. Расположенная в холле красивая угловая лестница обогащает интерьер, создавая неповторимую атмосферу роскоши и комфорта. Второй этаж вмещает три спальные комнаты разных размеров, ванную и гардеробную. С холла и одной из спален предусмотрен выход на балкон.

Почему именно клееный брус?

1
Отделка сразу
Не нужно ждать усадки полгода
2
Процент усадки
1-2% от исходной высоты дома
3
Высокая прочность
За счёт технологичной склейки
4
Минимум влаги
10-12% (почти не усыхает)
glued-timber

Как мы добиваемся качества

Клей
Клеевые сиcтемы Kiilto. отвечает требованиям нормы EN 15425 и одобрен для производства СЕ-маркированной клееной древесины в соответствии с нормой EN 14080
Древесина
Северные породы хвойной древесины 1 сорта (А,В класса) в соответствии с ГОСТ 8486-86.
Оборудование
Финская производственная линия Makron. Позволяет производить высококачественный брус нестандартных сечений
Упаковка
Готовый брус доставляется исключительно в транспортировочных пакетах и хранится вплоть до сборки самого комплекта.
В работе мы используем качественный клееный брус собственного производства
Записаться на экскурсию

Понравился этот дом?

*Отправляя форму, вы соглашаетесь на обработку персональных данных
Закажите его презентацию и мы ответим на все интересующие вас вопросы
arrow

Отправить заявку
Прикрепить собственный проект
(можно несколько файлов).

Нажимая кнопку "Отправить", вы автоматически соглашаетесь с политикой конфиденциальности
Заявка на звонок
Нажимая кнопку "Перезвоните мне", вы автоматически соглашаетесь с политикой конфиденциальности
Калькулятор
Габариты постройки
Фундамент
Наружные стены (сечение бруса)
Перегородки (сечение бруса)
Углы без остатка
Углы с остатком
Временная кровля без рубероида
Кровля из металлочерепицы
Итого
0 руб