8 (800) 550 11 63
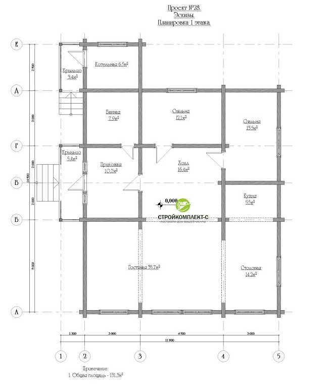
Одноэтажный дом из профилированного бруса, проект ПБ 30 размер 10 х 14 - планировка первого этажа
Площадь 1 этажа
131.3 м²
Хотите изменить планировку?
Назначьте встречу с одним из наших архитекторов и на основании ваших идей он создаст индивидуальные планировки .
Получить консультацию

Что входит в стоимость

tick
Утепление кровли 200 мм
tick
Металлочерепица
tick
Балки перекрытия сухие строганные или клееные
tick
Стропильная система сухая строганная
tick
Клееная окосячка оконных и дверных проемов с четвертью.
tick
Фундамент из жб свай или плита по желанию заказчика (за дополнительную плату)

О проекте

Дерево во все времена являлось приоритетным материалом при возведении экологически чистых построек. Неоспоримые достоинства натуральной древесины, использование передовых технологий и традиций обеспечивают возможность создания уникальных деревянных построек, притягивающих взгляд потрясающим дизайном. Дома из профилированного бруса практичностью, современным и стильным видом, надежностью и долговечностью. Для их сооружения не нужен мощный фундамент, не требуется внешняя и внутренняя отделка, и возводятся они в короткие сроки. Проект одноэтажного дома из профилированного бруса ПБ 30 очаровывает величием, уникальностью и красотой. Постройка имеет один этаж, где расположены все необходимые помещения для комфортного проживания. Через большие стильные и оригинально исполненные окна во все помещения дома проникает много яркого солнечного света, дарящего тепло и отличное настроение своим обитателям. С небольшого крыльца на открытой террасе имеется вход в уютную прихожую и просторный холл. В левом крыле дома имеется ванная и две спальные комнаты. Справа от холла расположена огромная светлая гостиная, столовая и кухня, объединены в единое пространство. В котельную предусмотрен отдельный вход.

Почему именно клееный брус?

1
Отделка сразу
Не нужно ждать усадки полгода
2
Процент усадки
1-2% от исходной высоты дома
3
Высокая прочность
За счёт технологичной склейки
4
Минимум влаги
10-12% (почти не усыхает)
glued-timber

Как мы добиваемся качества

Клей
Клеевые сиcтемы Kiilto. отвечает требованиям нормы EN 15425 и одобрен для производства СЕ-маркированной клееной древесины в соответствии с нормой EN 14080
Древесина
Северные породы хвойной древесины 1 сорта (А,В класса) в соответствии с ГОСТ 8486-86.
Оборудование
Финская производственная линия Makron. Позволяет производить высококачественный брус нестандартных сечений
Упаковка
Готовый брус доставляется исключительно в транспортировочных пакетах и хранится вплоть до сборки самого комплекта.
В работе мы используем качественный клееный брус собственного производства
Записаться на экскурсию

Понравился этот дом?

*Отправляя форму, вы соглашаетесь на обработку персональных данных
Закажите его презентацию и мы ответим на все интересующие вас вопросы
arrow

Отправить заявку
Прикрепить собственный проект
(можно несколько файлов).

Нажимая кнопку "Отправить", вы автоматически соглашаетесь с политикой конфиденциальности
Заявка на звонок
Нажимая кнопку "Перезвоните мне", вы автоматически соглашаетесь с политикой конфиденциальности
Калькулятор
Габариты постройки
Фундамент
Наружные стены (сечение бруса)
Перегородки (сечение бруса)
Углы без остатка
Углы с остатком
Временная кровля без рубероида
Кровля из металлочерепицы
Итого
0 руб