Выбрать проект из списка
Одноэтажный дом из профилированного бруса, проект 3-20-1
Проект дома 9 на 15 из профилированного бруса «9-15»
Проект дома 9 на 13 с мансардой «5-15»
Семейный дом 11 на 15 м, проект «Васькино»
Проект двухэтажного дома 9 на 11 "Старые Кузьменки", проф брус
Проект дома из профилированного бруса 8-17: два этажа, размер 8,5 на 8
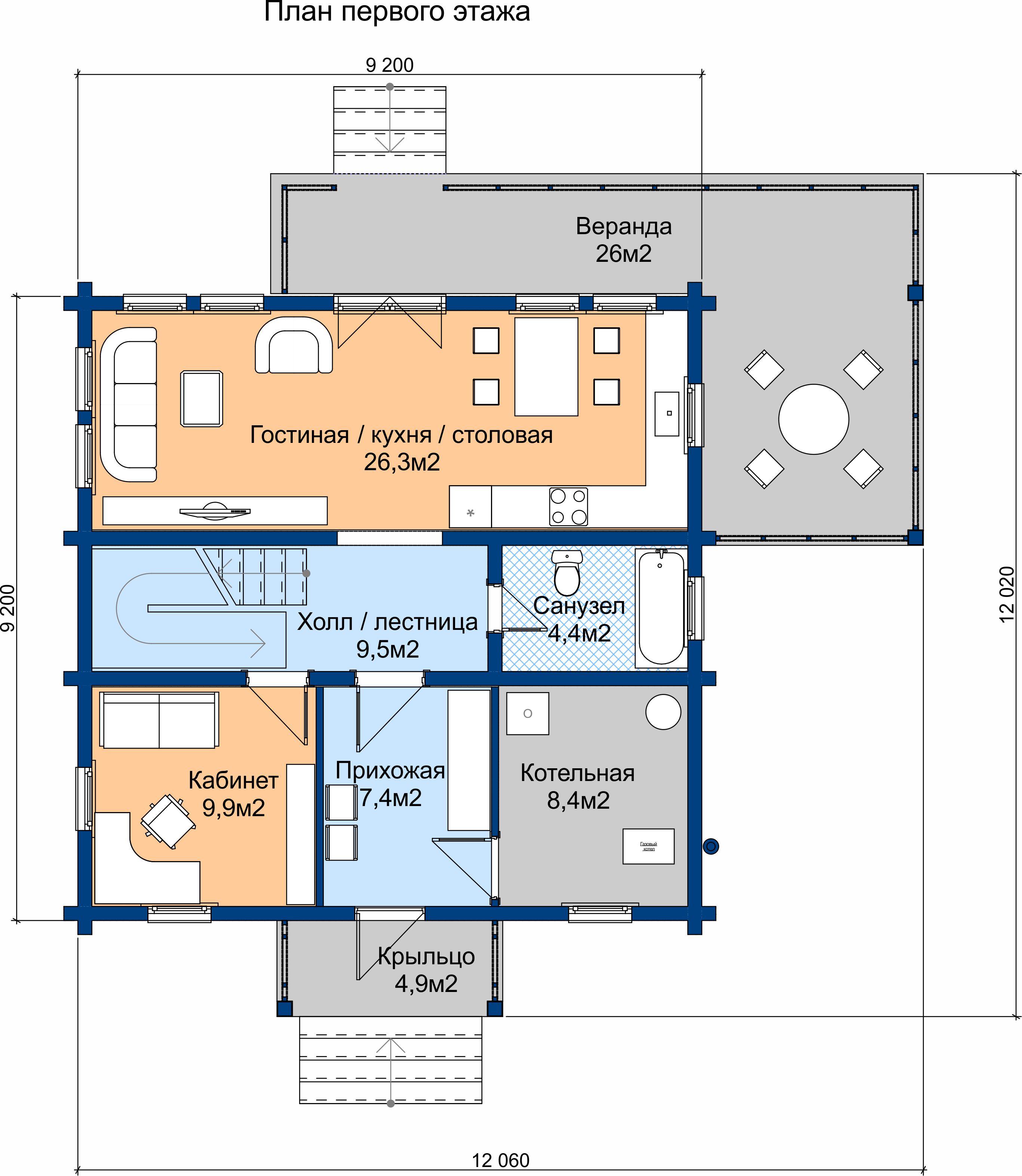
Проект двухэтажного дома из профилированного бруса "7-17" 17 на 10 м
Проект дома из профилированного бруса 9 на 12 м. 10-17
Проект дома 12 на 13 из профилированного бруса "Европейский"
Проект дома из профилированного бруса 22-16
Дом из проф бруса 9,5 на 8,5 м с террасой и навесом по проекту 21-16
Дом из профилированного бруса, проект 18-16
Проект двухэтажного дома 10 на 12 из профилированного бруса "12-17"
Дом 11 на 12 из профилированного бруса с мансардой, проект Заокский-2
Проект дома из профилированного бруса 16-16
Проект двухэтажного дома 10х10 «6-15», профилированный брус
Проект дома 9х11 "Знаменское"
Проект двухэтажного дома 11 на 14 из профилированного бруса "Злобино"
Проект дома 10 на 11 - Удачный
Проект дома 9 на 9 с мансардой из профилированного бруса "Твой дом"
Проект дома из профилированного бруса 10х10 "Арнеево"
Проект дома из профилированного бруса 1-20
Одноэтажный дом из профилированного бруса, проект 3-20-2
Дом-баня из профилированного бруса, проект 17-20
Дом из профилированного бруса со вторым светом, проект 3-21
Дом из профилированного бруса с мансардой проект 10-20
Проект дома из профилированного бруса 12-20 с террасой
Двухэтажный дом из профилированного бруса по проекту ПР 4-20 б
Проект одноэтажного дома из профилированного бруса с террасой 03-20
Проект комбинированного дома К 4-20
Проект двухэтажного дома из профилированного бруса 2-20
Одноэтажный дом из профилированного бруса, проект 7-17-1
Дом из профилированного бруса, проект 20-1
Гостевой дом баня из профилированного бруса камерной сушки 130 кв. м.
Проект дома 8 на 9 из сухого профилированного бруса 8-19-1
Проект дома из сухого профилированного бруса 8-19
Проект дома из профилированного бруса 9 на 10. 2 этажа. Пущино
Проект дома шале из профилированного бруса 7-15
Проект двухэтажного дома из профилированного бруса Бронницы
Проект двухэтажного дома из сухого профилированного бруса 3-16
Проект дома 11 на 13 "Тимашево (6/13)", профилированный брус
Дом из профилированного бруса 8х9, проект "Кузьменки"
Проект дома 8 на 10 из профилированного бруса - ПБ 31
Дом 9 на 14 из профилированного бруса, проект "Стрелковка"
Проект дома-бани 7 на 9 с мансардой из профилированного бруса ПБ 3-14
Проект дома 10х12 из профилированного бруса - ПБ 29
Проект дома 11 на 13 - ПБ 25
Проект дома 9 на 13 с мансардой "ПБ 2-14"
Проект двухэтажного дома 10 на 15 из профилированного бруса "ПБ 17-13"
Проект двухэтажного дома 11х12 из профилированного бруса ПБ 16-13
Дом из профилированного бруса 7х9. Проект - ПБ 11-13
Проект дома 9 на 8+веранда, тамбур из профилированного бруса - ПБ 1-14
Одноэтажный дом из профилированного бруса, проект ПБ 30 размер 10 х 14
Проект двухэтажного дома 9 на 14 с балконом "ПБ 1-13"
Проект двухэтажного дома 9х13 из профилированного бруса "Озеры"
Дом из профилированного бруса 7х7 с мансардой, проект "Кремёнки"
Проект дома 10 на 10 из профилированного бруса
Двухэтажный дом 8 на 10 из профилированного бруса, проект 10-15
Дом баня 10 на 10 с мансардой, из профилированного бруса, проект
Дом 7 на 8 из профилированного бруса, проект
Проект дома 6 на 9 из профилированного бруса - Бегичево
Проект бани 6 на 6, профилированный брус
Проект дома 7х8 - ПБ 8-13
Проект дома 10 на 10 двухэтажный "Спас-Каменка"
Проект дома 9х10 "Сосновый парк"
Проект дома в стиле шале – Сырьево
Проект двухэтажного дома 10 на 16 с гаражом "Шаховская" из проф бруса
Проект двухэтажного дома 8х11м из проф бруса - 5-16
Проект двухэтажного дома 10х12 из профилированного бруса 1-14-1
Проект бани 6х8 м из профилированного бруса с мансардой
Дом 10 на 12 из профилированного бруса, проект "Петровское"
Проект дома 10 на 12 из профилированного бруса - ПБ 8-14
Проект одноэтажного дома 10 на 12 из профилированного бруса ПБ 32.1
Проект дома 9 на 9 из профилированного бруса ПБ 7-14
ПБ 7-13
Дом 10 на 13 из профилированного бруса, проект ПБ 6-14
Проект дома 9 на 14 из профилированного бруса ПБ 5-13
Проект двухэтажного дома с гаражом 17 на 20 "ПБ 4-14"
Проект дома 9 на 9 м с мансардой - ПБ 38
Проект дома 9 на 10 из профилированного бруса "ПБ 37"
Проект дома 9х9 - ПБ 36
Проект дома 10 на 12 с мансардой "ПБ 33"
Проект дома из профилированного бруса 8-19-2
Двухэтажный дом из профилированного бруса, проект 18-20
Проект одноэтажного дома-бани из профилированного бруса 4-18
Загрузить свой проект